

进口二位二通膜片式电磁阀描述--
ALSO膜片式电磁阀是一种先导式结构的电磁阀,采用特殊密封结构和合成橡胶密封无泄漏,工作平稳噪音低,无水锤冲击,本产品广泛用于各种纯净气体流体、空气、自来水、瓦斯、煤气、柴油、低压蒸汽、热水管路的自动控制;
进口二位二通膜片式电磁阀控制方式--
1.常 闭 型:断电关闭,通电打开;
2.常 开 型:断电打开,通电关闭;
进口二位二通膜片式电磁阀特点--
采用膜片式特殊密封结构,动作灵敏
线圈耐温180℃,可持续通电
结构简单,体积小,封密性能好
专制线圈,不易烧毁,性能稳定;
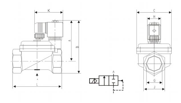
进口二位二通膜片式电磁阀技术参数--
动作方式:先导式,大通径
控制方式:常闭(标准),常开(可选)
接口螺纹:G,NPT,RC1/4~2”
公称通径:DN14~DN50
工作压力:0.02-1.0MPa,0.05-1.6MPa
适用介质:中性,气态或液态流体
介质粘度:≤21mm2/s
介质温度:NBR-10~+80℃,FKP-10~+110℃,EPDM-20~+120℃
环境温度:-10~+50℃(防爆型-20~+40℃)
阀体材质:黃铜,不锈钢304
标准电压: AC:220V(50/60Hz)
DC:24V
防护等级:IP65
安装方式:线圈朝上
ALSO二位二通先导型膜片式



ALSO二位二通先导型膜片式



联系电话
微信扫一扫